Untermieter gesucht! Moderne Gewerbefläche als „Shop im Shop“ im Gewerbegebiet (KfW 55 Standard)
Untermieter gesucht! Moderne Gewerbefläche als "Shop im Shop" im Gewerbegebiet (KfW 55 Standard)
Eckdaten
- Art Gewerbefläche
- Lage 94315 Straubing
- Miete zzgl. NK 1.500,00 €
- Gewerbefläche ca. 450 m²
- Baujahr 2016
- Gesamtfläche ca. 450 m²
- Heizungsart Wärmepumpe
- Kaution 3 MM
- Bezugstermin nach Absprache
- Immobilien-ID 135508311
- Provision 3,57 MM inkl. MwSt.
Immobilie
Kurzübersicht:
Die zur Vermietung angebotene Einheit ist eine Gewerbefläche im 1.Obergeschoss eines modernen Raumausstatters, der sein Ladenkonzept neu strukturiert hat. Das Gebäude verfügt über eine attraktive Architektur und bietet zudem eine gute Anbindung an öffentliche Verkehrsmittel sowie ausreichend Parkmöglichkeiten für Mitarbeiter und Kunden.
Hier soll eine moderne "Shop im Shop" Situation entstehen und die beiden Geschäfte sollen sich ergänzen.
Die Räumlichkeiten der Gewerbefläche erstrecken sich über insgesamt ca. 450,00 m² und eignen sich ideal für verschiedene gewerbliche Nutzungen und können auch geteilt werden.
Die umliegende Infrastruktur bietet zahlreiche Einkaufsmöglichkeiten. Das Gebäude verfügt zudem über einen Aufzug. Insgesamt handelt es sich um eine attraktive Gewerbefläche mit viel Potenzial für eine erfolgreiche Geschäftstätigkeit.
Es besteht die Möglichkeit, die Gewerbefläche aufzuteilen und nur eine Teilfläche anzumieten.
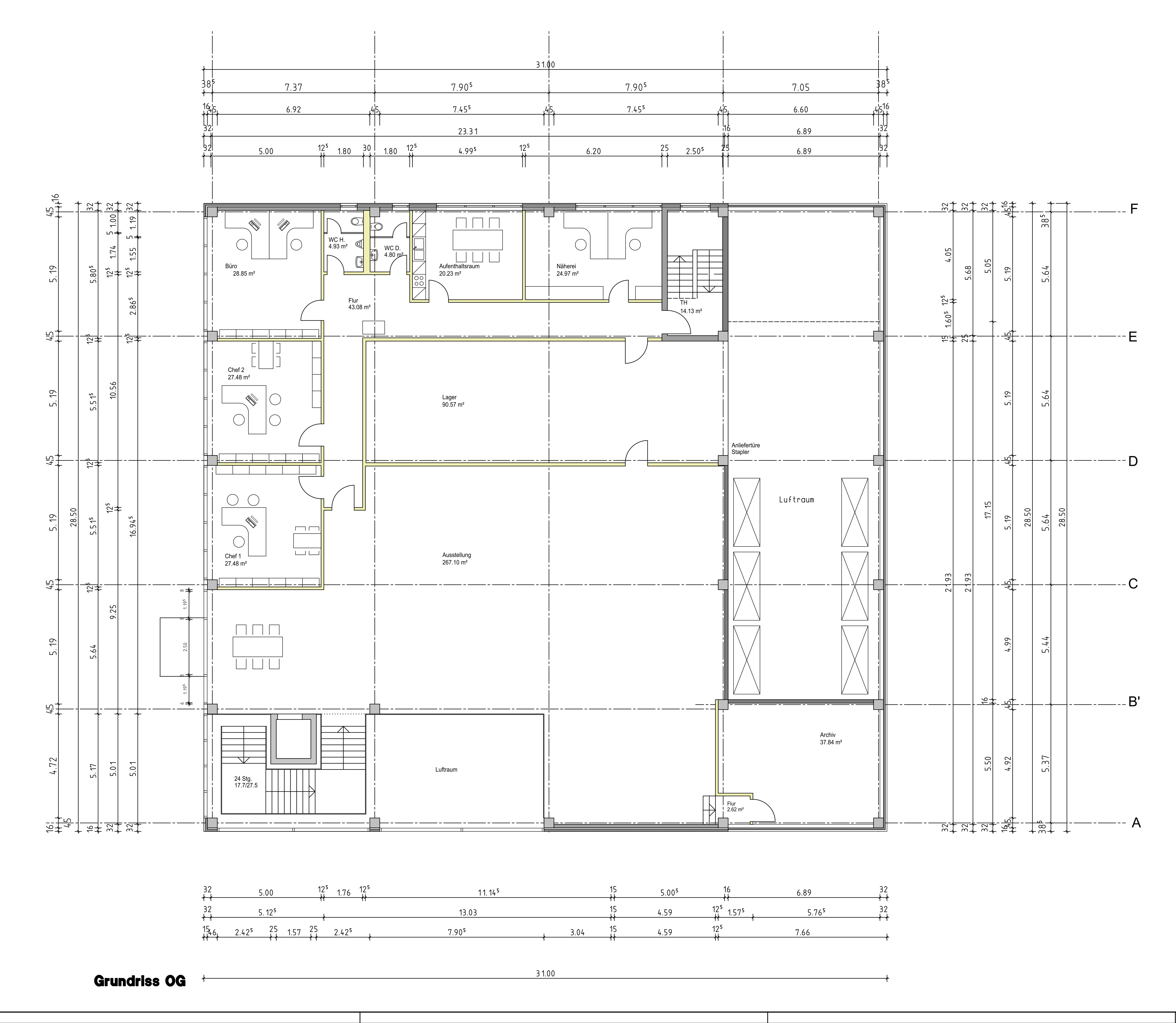
Flächenaufstellung:
Ausstellungsfläche 1.OG: 267,32 m²
Büro 1: ca. 27,48 m²
Büro 2: ca. 27,48 m²
Lager 1: ca. 90,28 m² (mit Gabelstapler erreichbar)
Lager 2: ca. 37,83 m²
Gesamt: ca. 450,39 m²
Lage
Die Gewerbefläche befindet sich in Straubing-Ost, der für seine gute Anbindung an öffentliche Verkehrsmittel und die Nähe zu verschiedenen Einkaufsmöglichkeiten bekannt ist. Die Umgebung zeichnet sich durch eine Mischung aus Wohn- und Geschäftshäusern aus und bietet somit eine vielfältige Infrastruktur für Unternehmen.
Straubing ist eine charmante Stadt in Niederbayern, geprägt von historischer Architektur und einer lebendigen Kultur. Die Stadt bietet eine Vielzahl von Restaurants, Geschäften und kulturellen Einrichtungen, die das urbane Leben bereichern. Zudem lockt Straubing jedes Jahr tausende Besucher mit dem bekannten Gäubodenvolksfest an, einem der größten Volksfeste in Niederbayern.
Verkehrsanbindung:
– B20 Richtung München
– A3 Richtung Regensburg/ Richtung Passau
Ausstattung
Innenausstattung:
– Echtholzparkett
– Beleuchtungskonzept
– Aufzug
– Schwerlasterregale im Lager
– KfW 55 Standard (für Nichtwohngebäude)
– Zwischenwände Rigips (können nach Absprache entfernt werden oder zusätzlich ergänzt werden)
Außenausstattung:
– Außenparkplätze (nicht fest vergeben)
Betriebskostenpauschale:
In der Betriebskostenpauschale sind folgende Kosten enthalten:
– Strom (Heizung/ Beleuchtung)
– Wasser
– Aufzug
– Reinigung (2x wöchentlich)
– Müllentsorgung (Papier + Restmüll)
– Schwerlastregale im Lager
– Parkplätze
Hinweis:
Es wird eine monatliche Nebenkostenpauschale erhoben. Eine separate Nebenkostenabrechnung erfolgt nicht. In der Pauschale sind sämtliche umlagefähigen Betriebskosten enthalten, ausgenommen sind lediglich die Kosten für Internet, die vom Mieter selbst zu tragen sind.
Sonstiges
Hinweis:
Die tatsächliche Raumaufteilung weicht leicht vom beiliegenden Grundriss ab.
Haftungsausschluss:
Alle Angaben stammen vom Vermieter. Die Firma Gerl Immobilien e. K. übernimmt daher keine Haftung für die Richtigkeit der Angaben. Insbesondere die Angaben zur Wohnfläche, zur Nutzfläche und zur Aufteilung der Wohn- /Nutzfläche sind von uns nicht durch ein eigenes Aufmaß oder eine eigene Wohnflächenberechnung kontrolliert worden. Die Angaben zum Baujahr sind nicht durch eine Einsicht in die Bauakte überprüft worden.
Energieausweisangaben
- Heizungsart Wärmepumpe
- Befeuerung / Energieträger Strom
Herzlichen Dank für Ihre Anfrage.
Wir werden diese so schnell wie möglich bearbeiten.
