Kernsaniert – Geräumige 5-Zimmer-Wohnung im Stadtzentrum (WHG 01)
Kernsaniert – Geräumige 5-Zimmer-Wohnung im Stadtzentrum (WHG 01)
Eckdaten
- Art Etagenwohnung
- Lage 94315 Straubing
- Miete zzgl. NK 1.490,00 €
- Nebenkosten 310,00 €
- Wohnfläche ca. 136 m²
- Zimmer 5
- Baujahr 1700
- Etagenzahl 4
- Etage 1
- Alt-/Neubau Altbau
- Denkmalschutzobjekt ja
- Heizungsart Gas-Heizung
- Einbauküche nein
- Stellplatztyp Keine Angabe
- Kaution 3 MM
- WG geeignet ja
- Verfügbar ab 15.03.2026
- Bodenbelag Parkett
- Ausstattung des Bades Dusche
- Zustand Erstbezug nach Sanierung
- Immobilien-ID 135508220
Immobilie
Wohnung 01 (grün)
Kurzübersicht:
Die angebotene Immobilie ist eine charmante Etagenwohnung in einem Altbau aus dem Jahr 1700. Das Gebäude verfügt über insgesamt 4 Etagen und befindet sich in einem erstklassigen Zustand, da es erst kürzlich umfassend saniert wurde.
Die hier zur Vermietung stehende Wohnung besticht durch ihre hochwertige Ausstattung und ihre großzügige Raumaufteilung. Zu den Annehmlichkeiten zählen unter anderem ein geräumiges Wohnzimmer, zwei stilvolles Badezimmer und vier Schlafzimmer.
Neben den attraktiven Wohnräumen punktet die Dachgeschosswohnung auch mit ihrer zentralen Lage in einer belebten sowie gut angebundenen Gegend. Einkaufsmöglichkeiten, Restaurants und öffentliche Verkehrsmittel sind in unmittelbarer Nähe vorhanden. Aufgrund der fehlenden Parkplätze eignet sich die Wohnung besonders für all jene, die das Auto nicht täglich benötigen. Für Liebhaber von historischem Charme und modernem Komfort bietet diese Immobilie das perfekte Zuhause.
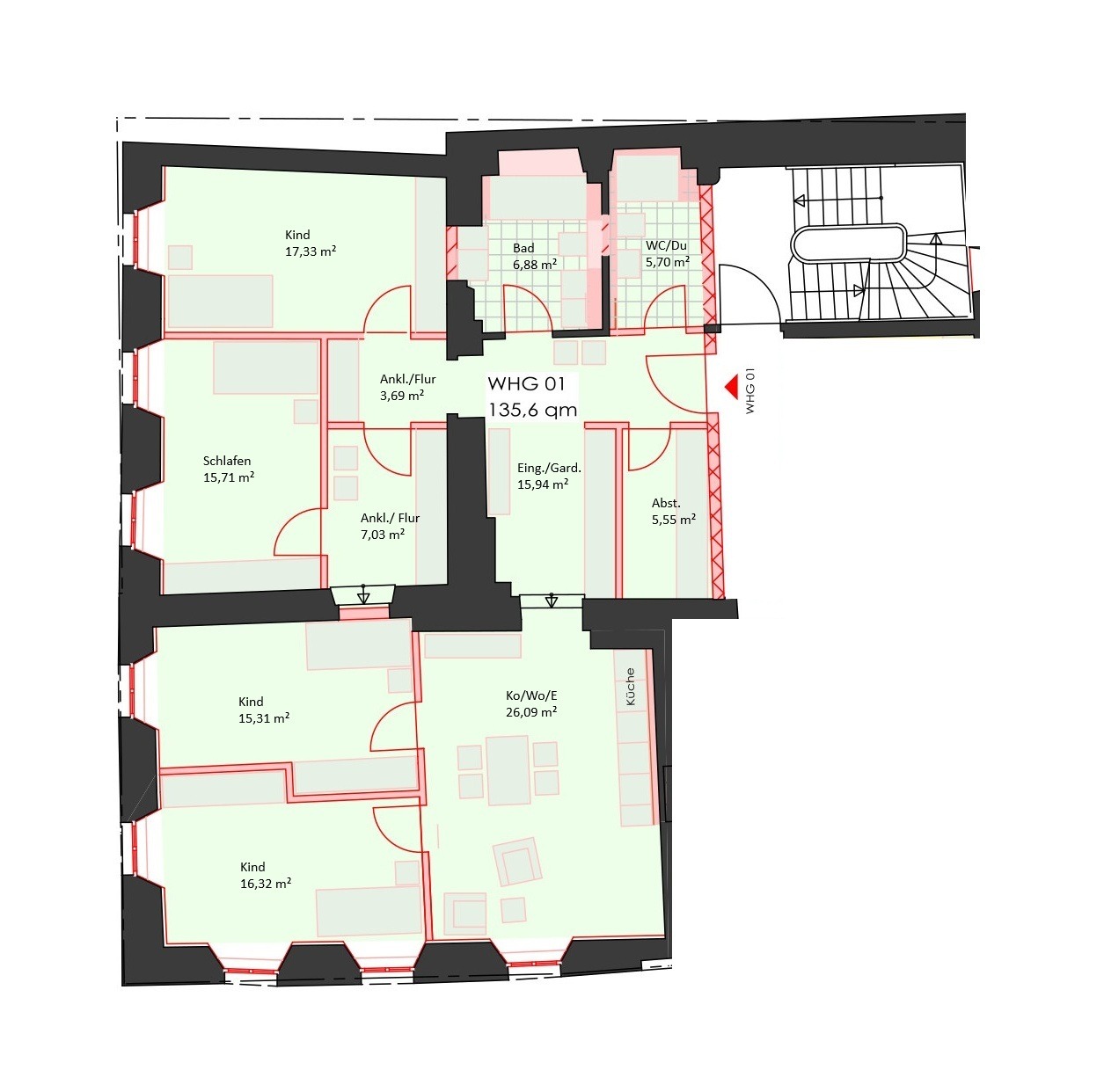
Raum- und Flächenaufstellung:
Eingang/Garderobe: 15,94 m²
Abstellraum: 5,55 m²
Kochen/ Wohnen/ Essen: 26,09 m²
Ankleide/ Flur: 7,03 m²
WC/Dusche: 5,70 m²
Bad: 6,88 m²
Ankl./Flur: 3,69 m²
Schlafen: 15,71 m²
Kind: 17,33 m²
Kind: 15,31 m²
Kind: 16,32 m²
Gesamt: 135,55 m²
Lage
Das Stadthaus liegt am historischen Stadtplatz in Straubing.
Zahlreiche Einkaufsmöglichkeiten für den täglichen Bedarf sind zu Fuß in Kürze zu erreichen. (bspw. Bäcker, Metzger, etc.)
Die Stadt Straubing bietet neben den zahlreichen Restaurants, Cafés und Einkaufsmöglichkeiten auch ein vielfältiges Freizeitangebot.
Aktuell hat Straubing ca. 49.000,00 Einwohner und ist durch die Ansiedlung der Technischen Universität München als aufstrebende Universitätsstadt ein ansprechender Wohnort.
In unmittelbarer Nähe finden Sie öffentliche Verkehrsmittel (Bus oder Bahn). Die Fahrradwege sind ebenfalls bestens ausgebaut.
Ausstattung
Innenausstattung:
– Holzfenster (Isolierverglast)
– Parkettboden
– moderne Fliesen
– Einbauküche (schreinergefertigt)
– Videogegensprechanlage
Heizung:
– Heizkörper
– Gasheizung
– Wandheizkörper (Bad)
Besonderheiten:
– Kernsanierung
– Denkmalschutz
– Sanierungsgebiet
Sonstiges
Hinweis:
– kein Aufzug
– kein Kellerabteil
– kein Balkon
– kein Stellplatz
– kein Fahrradbereich
Energieausweisangaben
- Heizungsart Gas-Heizung
- Befeuerung / Energieträger Gas
Rechtliches
3,57 MM
Herzlichen Dank für Ihre Anfrage.
Wir werden diese so schnell wie möglich bearbeiten.

