Kapitalanlage – Zentrale Erdgeschosswohnung in ruhiger Lage (vermietet)
Kapitalanlage – Zentrale Erdgeschosswohnung in ruhiger Lage (vermietet)
Eckdaten
- Art Erdgeschosswohnung
- Lage 94315 Straubing
- Kaufpreis 239.000,00 €
- Wohnfläche ca. 77 m²
- Zimmer 3.5
- Baujahr 1994
- Heizungsart Gas-Heizung
- Einbauküche nein
- Gäste-WC nein
- Stellplatzkaufpreis 15.000,00 €
- Vermietet ja
- Bezugstermin vermietet
- Bodenbelag Vinyl Fliesen
- Ausstattung des Bades Dusche
- Immobilien-ID 135508260
- Provision 3,57% inkl. MwSt.
Immobilie
Kurzübersicht:
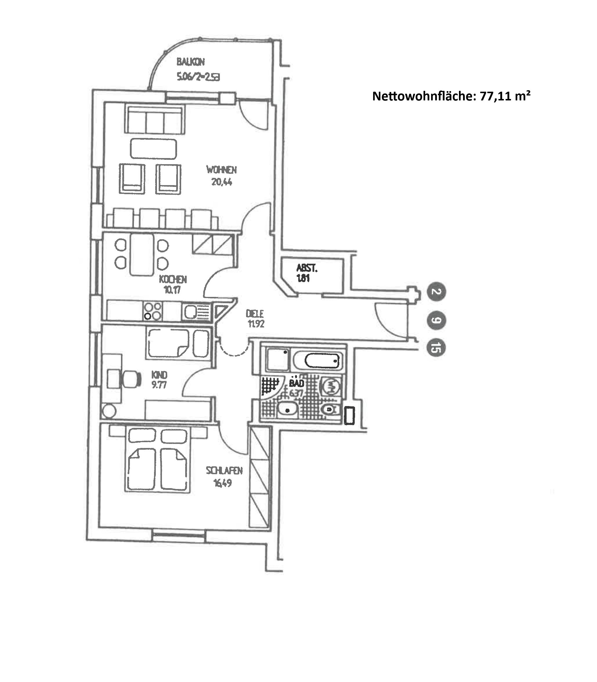
Die angebotene Immobilie ist eine geräumige Erdgeschosswohnung mit einer Wohnfläche von ca. 77.11 m². Das Gebäude befindet sich in zweiter Bebauungsreihe und wurde im Jahr 1994 erbaut. Die Wohnung verfügt über eine Gas-Heizung und ist aktuell vermietet.
Beim Betreten der Wohnung gelangt man in den großzügigen Wohn- und Essbereich. Die angrenzende Küche bietet genügend Platz zum Kochen. Das Badezimmer ist mit einer Dusche ausgestattet, sowie mit Spiegelschrank und Waschbeckenunterschrank. Die beiden weiteren Zimmer bieten ausreichend Platz für ein gemütliches Schlafzimmer und ein Arbeitszimmer oder Kinderzimmer.
Die Wohnung verfügt zudem über eine kleine Terrasse, auf der man die warmen Sommerabende genießen kann. Ein Kellerabteil bietet nochmal extra Stauraum. Die Wohnanlage ist gepflegt und ruhig gelegen, was eine angenehme Wohnatmosphäre bietet.
Raum- und Flächenaufstellung:
Diele: ca.11,92 m²
Abstellraum: ca. 1,81 m²
Bad: ca. 6,37 m²
Schlafen: ca. 16,49 m²
Kind/ Büro: ca. 9,77 m²
Küche: ca. 10,17 m²
Wohnen/ Essen: ca. 20,44 m²
Terrasse: ca. 2,53 m²
Gesamt: ca. 77,11 m² (abzgl. 3% Putz)
Hinweis: In der Wohnfläche von ca. 77,11 m² wurde die tatsächliche Fläche von der Terrasse von ca. 8,48 m² (0,50) nicht berücksichtigt. Somit hat das Objekt eine etwas höher Wohnfläche von ca. 5,95 m².
Kaufpreisaufstellung:
KP Wohnung: 239.000,00 €
KP Stellplatz: 15.000,00 €
KP Einbauküche: 5.000,00 €
KP Gesamt: 259.000,00 €
Lage
Das Objekt befindet sich in einer ruhigen Lage in Straubing. In unmittelbarer Nähe zur Wohnung gibt es eine Vielzahl von Einkaufsmöglichkeiten, Restaurants und Cafés. Der nahegelegene Park lädt zu erholsamen Spaziergängen ein.
Straubing selbst ist eine lebendige Stadt mit einer malerischen Altstadt, die zum Bummeln und Verweilen einlädt. Die historischen Gebäude und Kirchen zeugen von der langen Geschichte der Stadt. Neben zahlreichen kulturellen Angeboten gibt es auch eine Vielzahl von Freizeitmöglichkeiten wie Radwege entlang der Donau oder verschiedene Sportvereine.
Ausstattung
Innenausstattung:
– Vinyl Boden
– Fliesenboden (80×80)
– Kunststofffenster (Doppelisolierglas)
– Einbauküche (weiß-braun) ohne Kühlschrank
– Gegensprechanlage
– manuelle Rollos
– Bad:
* geräumige Dusche
* Waschbeckenunterschrank
* Spiegelschrank mit Beleuchtung
* Waschmaschinenanschluss
Außenausstattung:
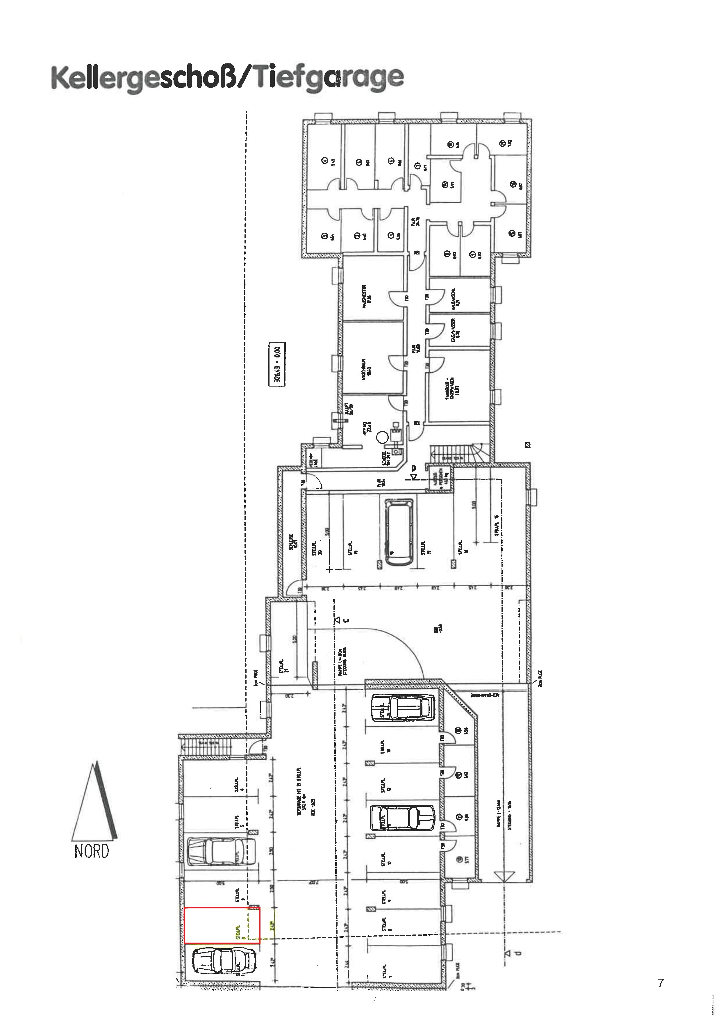
– Tiefgaragenstellplatz Nr. 2
– Terrasse
– Markise
– Gartenbereich
– Kellerabteil Nr. 2
– Aufzug
Heizung:
– Gaszentralheizung
– Heizkörper
– Wandheizkörper (Bad)
Bausubstanz:
– Außenwände 36,5 cm Poroton
– Wohnungstrennwände 24 cm in HL-Ziegel
– Satteldach (naturroten Falzziegeln)
– Streifenfundament in Schwerbeton
– Stahlbetonmassivdecken
Modernisierung/ Renovierung:
Im Jahr 2022 fanden folgende Renovierungsarbeiten statt:
– Malerarbeiten
– Bodenbeläge
– Wasser/ Abwasser/ Estrich/ Fliesen/ Sanitärausstattung
– E-Check von Steckdosen/ Schalter
– Austausch Rollladengurte/ Wickler
Sonstiges
Hausgeld (ab 01.07.2025):
Hausgeld: 306,18 € (monatlich)
Rücklage Wohnung: 113,82 € (monatlich)
Gesamt: 420,00 € (monatlich)
Betriebskosten (2025):
umlegbare Betriebskosten: 1.750,01 € (jährlich)
umlegbare Heizkosten : 1.148,80 € (jährlich)
nicht umlegbare Betriebskosten: 770,90 € (jährlich)
Hinweis:
Die tatsächliche Raumaufteilung weicht leicht vom beiliegenden Grundriss ab.
Bei dem eingezeichneten Balkon handelt es sich um eine Terrasse.
Haftungsausschluss:
Alle Angaben stammen vom Verkäufer/ Vermieter. Die Firma Gerl Immobilien e. K. übernimmt daher keine Haftung für die Richtigkeit der Angaben. Insbesondere die Angaben zur Wohnfläche, zur Nutzfläche und zur Aufteilung der Wohn- /Nutzfläche sind von uns nicht durch ein eigenes Aufmaß oder eine eigene Wohnflächenberechnung kontrolliert worden. Die Angaben zum Baujahr sind nicht durch eine Einsicht in die Bauakte überprüft worden.
Energieausweisangaben
- Enerigeausweistyp Verbrauchsausweis
- Energiekennwert 120 KWh(m²*a)
- Energieeffizienzklasse D
- Energieausweis gültig bis 02.05.2028
- Heizungsart Gas-Heizung
- Befeuerung / Energieträger Gas
Rechtliches
3,57%
Herzlichen Dank für Ihre Anfrage.
Wir werden diese so schnell wie möglich bearbeiten.


